
Residential Commons
Sector
Residential
Location
Cambridge, Ontario
Year
2024
Software
AutoCAD, Sketchup, Enscape, Revit
This multi-purpose residential development is located in Kitchener, Ontario and features a diverse mix of unit types to accommodate a variety of tenant needs, ranging from one-bedroom to three-bedroom apartments.
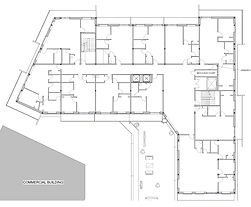
The ground floor includes key amenities for residents such as a welcoming lobby, communal gathering space, secure lockers, a bike storage room, fully equipped gym, and a games room. At the front of the building, two designated commercial units are intended for restaurant use, enhancing street-level activity and accessibility. The upper floors are comprised of residential units and strategically placed communal spaces to foster social interaction among residents. The fourth floor features a rooftop terrace and a resident lounge, providing outdoor and leisure space with elevated views. The development also includes a secondary building dedicated to commercial use. The first floor houses a public library, the second floor is occupied by a pharmacy and medical clinic, and the top floor features boutique retail spaces, a café, and direct access to the rooftop terrace.



A secondary building on the site is dedicated exclusively to commercial use.
The ground floor features a prominent entry sequence that leads into a spacious library overlooking the building’s central courtyard, establishing a strong visual and spatial connection to the heart of the site.
The second floor accommodates a walk-in clinic, a pharmacy, and associated office spaces, supporting essential community services within a centralized location.
​
The uppermost level is designed to host a boutique retail space, a café, and a lounge, complemented by an adjoining terrace that offers views of both the internal courtyard and Victoria Park, creating an engaging destination for occupants and visitors alike.


_edited.jpg)
Residential - Ground Level
_edited.jpg)
Residential - Floor 2 - 3
_edited.jpg)
_edited.jpg)
Residential - Floor 4
Residential - Floor 5 - 12
_edited.jpg)
Commercial - Ground Level
_edited.jpg)
Commercial - Level 2
_edited.jpg)
Commercial - Level 3